Shop » Detailansicht Kamintür K31/4 - Edelstahl V2A

Kategorie: Bauen und Renovieren » Kamintüren

Kamintür K31/4 - Edelstahl V2A

Schornsteinreinigungsverschluss/ Kamintür - Art.Nr.: 10158

Artikel-Nr.: 82734300
Hersteller: Upmann GmbH & Co. KG

Preis: 99,75 €   89,78 €
-10% Onlinerabatt


Bestellmenge:
Stück 

Detailbeschreibung

Kamintür K31/4 - Edelstahl V2A

  • Edelstahl, V2A
  • Vierkantverschluss
  • Geprüft und zugelassen vom Institut für Bautechnik
  • Aushängbares Türblatt
  • Zusätzliche Dichtung
  • Abtropfkante
  • P-BWU-02-61
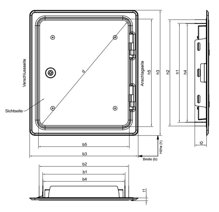
  • Technische Informationen:
    • Größe (B x H): 250 x 300 mm
    • Einbaumaß (b1 x h1): 253 x 303 mm
    • Bauöffnungsmaß (b2 x h2 min.): 255 x 305 mm
    • Bauöffnungsmaß (b2 x h2 max.): 288 x 338 mm
    • Rahmen Außenmaß (b3 x h3): 332 x 382 mm
    • Lichte Öffnung (b4 x h4): 250 x 300 mm
    • Türblattmaß (b5 x h5): 278 x 328 mm
    • Tiefe (t1 x t2): 9 x 36 mm
    • Durchgangsmaß (d): 385 mm
    • Anzahl Verschlüsse: 1



« Weitere Artikel in der Kategorie Kamintüren anschauen

» alle anzeigenWeitere interessante Artikel von "Upmann GmbH & Co. KG"

Kamintür K31/4 - verzinkt i
» Details & Bestellinfos «
Preis: -10% 38,49 €
Bestellmenge:

Kamintür K30/4 - Edelstahl V2A i
» Details & Bestellinfos «
Preis: -10% 98,10 €
Bestellmenge:

Kamintür K30/4 - verzinkt i
» Details & Bestellinfos «
Preis: -10% 35,14 €
Bestellmenge: